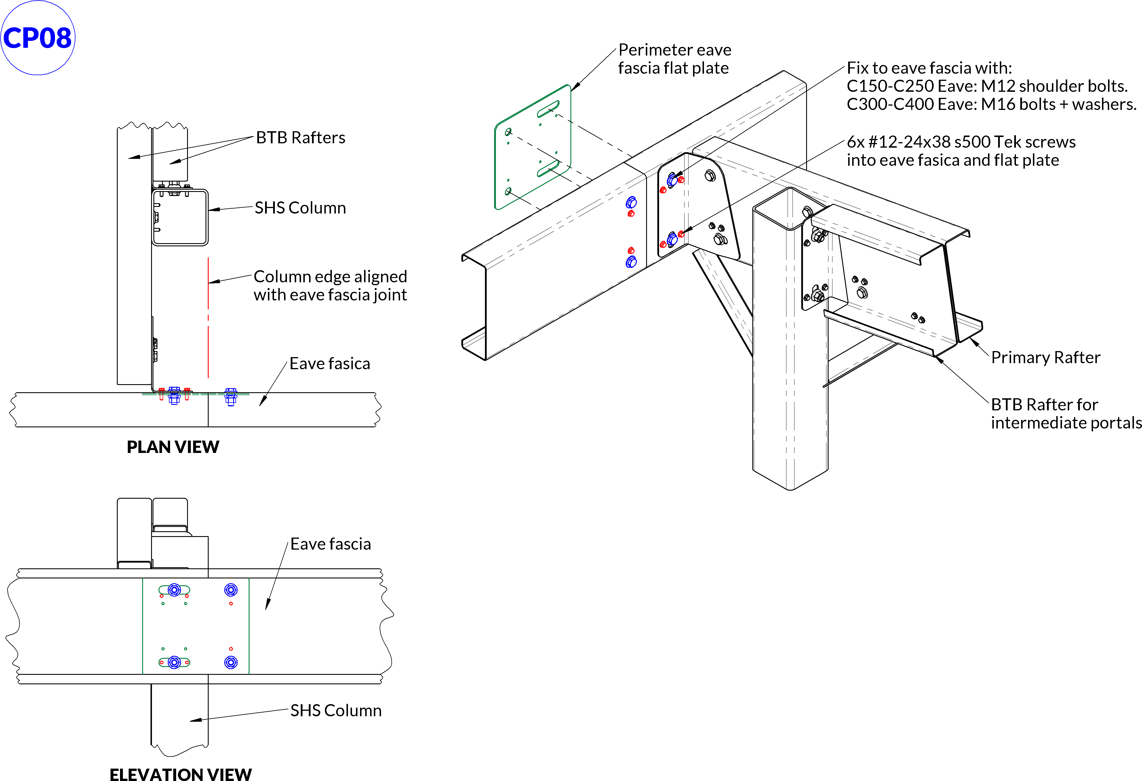
For very long skillions carports, the eave fascia may be split into multiple beams for freight purposes.
For very long skillions carports, the eave fascia may be split into multiple beams for freight purposes.